Описание котла
Водогрейный котел КВр-0,1 – это агрегат мощностью 100 кВт (0,1 МВт), использующийся для отопления и горячего водоснабжения жилых, административных и производственных зданий. В качестве топлива для котла используются древесные отходы: кора, щепа, опилки, пеллеты. Максимальная температура нагрева жидкости в котлах на древесных отходах достигает 115 °С. Устанавливается в котельной 100 кВт или работает в системе из нескольких котлов в котельной 200 кВт.
Конструкция котла КВр состоит из блока котла — сварной трубной системы с конвективным газоходом, внутри которого циркулирует нагреваемая жидкость, и ручной топки ОУР — охлаждаемой угловой решетки. Металлический корпус покрытый краской защищает котел от коррозии и механических повреждений. Чтобы сократить теплопотери, газоплотные и негазоплотные части котельного блока обшиты теплоизоляционным материалом: плитами ПТЭ и войлоком.
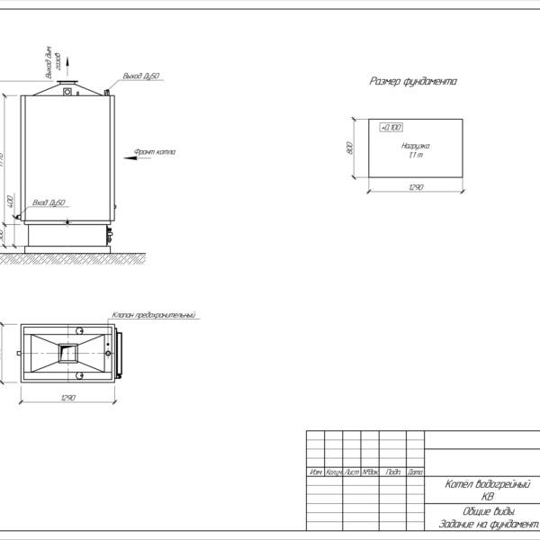
Установка котла КВр-0,1 с габаритными размерами по длине, ширине и высоте: 1,3х0,85х2,3 м требует специально подготовленное основание. Агрегат компактен, безопасен и прост в эксплуатации. Отапливаемая площадь достигает – 1000 м². Твердотопливный котел с ручной системой топливоподачи и шлакоудаления не имеет высоких требований к качеству нагреваемой жидкости и работает без водоподготовки. Для удобства загрузки топлива котел с ОУР оснащен шнековой подачей и ворошителем. Легко обслуживается одним оператором – кочегаром: расход древесных отходов небольшой – 32 кг/ч.
При должном соблюдении правил использования, а это своевременная очистка топки от шлака, можно забыть о поломках и снижении производительности отопительного котла КВр, что дает срок службы не менее 10 лет.
Более подробную информацию Вы можете получить у наших специалистов. Чтобы купить твердотопливный котел КВр-0,1 мощностью 100 кВт (0,1 МВт) на древесных отходах (коре, щепе, опилках, пеллетах) с топкой ОУР достаточно позвонить нам либо оставить заявку и мы обязательно с Вами свяжемся.

