Котёл КВр-1,3 на угле с ОУР в Пензе

Водогрейный котел КВр мощностью 1,3 МВт (1300 кВт) на угле с ручной топкой ОУР используется для получения горячей воды, температурой до 115 °С. Максимальная отапливаемая площадь помещений — 13000 м². В качестве топлива в отопительном котле КВр-1,3 используется каменный или бурый уголь. Получает большое применение в системах централизованного теплоснабжения и горячего водоснабжения. Устанавливается как самостоятельный водогрейный агрегат, или работает в системе из нескольких котлов в модульных или стационарных котельных.

Цена:
455 000 руб.
Количество:
Отправляя свои личные данные через формы на сайте, Вы даёте своё согласие на обработку персональных данных согласно Федеральному закону №152-ФЗ «О персональных данных» от 27.07.2006 г. в редакции от 01.07.2017.

Устройство и принцип работы котла КВр-1,3 на угле с ОУР

Котел КВр-1,3 имеет двухблочное горизонтальное строение, состоящее из ручной топки и котельного блока с конвективным газоходом, внутри которого циркулирует нагреваемая жидкость. Два блока котельного агрегата соединены в единую сварную конструкцию, защищенную теплоизоляцией.

Топка ОУР состоит из системы труб, которые охлаждаются водой, что исключает прогорание металлических поверхностей. Между ними расположен уголок, которых помогает воздуху равномерно заполнять всю площадь топки. Воздух в топку подается системой вентиляции, распложенной под решеткой. Таким образом топливо на решетке сжигается в полукипящем слое, который представляет собой промежуточное состояние топлива между неподвижным и кипящим слоем угля. Этот принцип сжигания топлива снижает химический и механический недожег.

Условное обозначение

Котел КВр-1,3 на угле с топкой ОУР, где:

  • К — котел;
  • В — водогрейный;
  • р — ручная топка;
  • 1,3 — мощность котла, МВт;
  • О — охлаждаемая;
  • У — угловая;
  • Р — решетка.

Особенности и преимущества

  • минимальные потери тепла;
  • высокий уровень КПД;
  • ручная подача топлива;
  • большая производительность оборудования;
  • высокая надежность конструкции;
  • экономичность во время работы;
  • низкие требования для настройки и установки.

Монтаж котла КВр-1,3 с ручной топкой ОУР

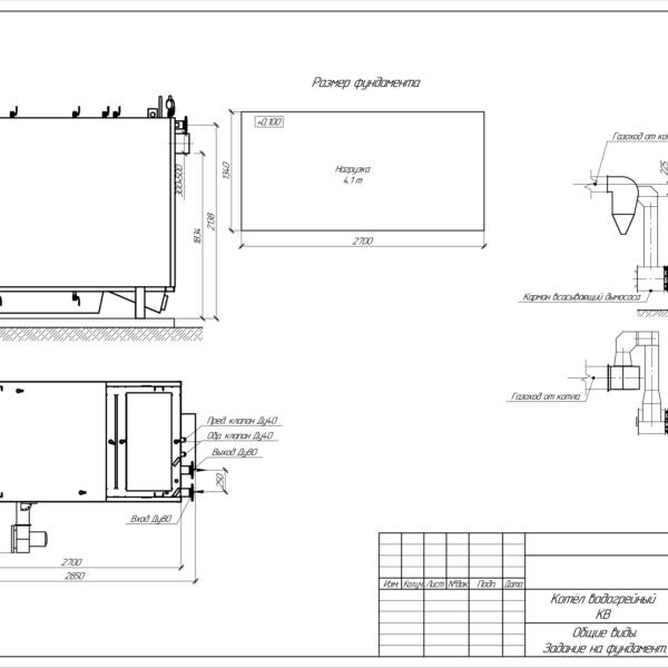
Котел КВр-1,3 на угле с топкой ОУР поставляется в удобном двублочном исполнении (котел и топка) в полной заводской сборке, и легко стыкуются при монтаже. Устанавливается на предварительно выровненную поверхность без необходимости в строительстве специального фундамента. Крепится к поверхности при помощи анкерных болтов.

Монтаж котельного оборудования производится с соблюдением СНиП 11-35-76 «Котельные установки» и «Правил устройства и безопасной эксплуатации паровых и водогрейных котлов». Установка и пуско-наладочные работы выполняют специалисты, которые имеют разрешение на проведение данных работ.

Купите угольный котел КВр-1,3 с ОУР на нашем сайте

Приобрести КВр-1,3 на угле с топкой ОУР и другие модификации можно через нашу компанию. Также возможен предварительный заказ оборудования через сайт и форму обратной связи. Дополнительно покупатели имеют возможность заказать котел по телефону. Предварительно необходимо ознакомиться с характеристиками.

Характеристики
Тип: КВр
Вид топлива: Каменный уголь$Бурый уголь
Мощность: 1.12 Гкал
Мощность: 1300 кВт
Мощность: 1.3 МВт
КПД, не менее: 80 %
Вид топки: Ручная ОУР
Класс котла: 1
Отапливаемая площадь: 13000 м²
Отапливаемый объём: 35100 м³
Тяга: Принудительная
Температура воды на выходе, не менее: 70...95 °С
Аэродинамическое сопротивление: 210 Па (мм. вод. ст.)
Расход теплоносителя среды: 45 м³/ч
Расход условного топлива: 200 кг/ч
Расход топлива: 280 кг/ч
Массовый расход уходящих газов: 0.78 кг/с
Низшая теплота сгорания топлива: 5000 кКал/кг
Давление рабочей среды: 0,6 МПа (кгс/cм²)
Гидравлическое сопротивление при перепаде t: 0,08 МПа (кгс/cм²)
Температура воды на входе в котёл, не менее: 60 °C
Температура уходящих газов: 170…250 °C
Радиационная поверхность нагрева: 15.1 м²
Конвективная поверхность нагрева: 42 м²
Номинальное разрежение в топке при работе: 20…60 Па
Габаритные размеры (ДxШxВ): 2850х1350х2350 м
Масса котла (без воды): 3100 кг
Расчетный срок службы, не менее: 10 лет

Города поставок

Москва
Пн-Пт 09:00 - 18:00
Сб 09:00 - 17:00
Карачаево-Черкесская Республика
Пн-Пт 09:00 - 18:00
Сб 09:00 - 17:00
Екатеринбург
Пн-Пт 09:00 - 18:00
Сб 09:00 - 17:00

Совершите покупку за 4 шага

Шаг 1
Выберите товары из каталога
Шаг 2
Поместите нужные вам товары в корзины
Шаг 3
Укажите свои контактные данные в форме обратной связи
Шаг 5
Ожидайте звонка от менеджера для оформления покупки

Похожие товары

КВм
Котлы КВм
Цена от 0 руб.
Отопительные котлы
Водогрейный котел КВм-7.0 на ДВО используется для нагрева жидкости до 115 °С, применяемой в системах отопления и горячего водоснабжения. Отопительные приборы КВм-7.0 способны прогревать помещения площадью до 70000 м². Твердотопливный котел оснащается механической топкой на древесных отходах со шнековой подачей. Дополнительно к агрегату приобретаются сопутствующие товары: вентиляторы, дымососы, циклоны, дымовые трубы, бункер топки и другое котельное оборудование.
Отопительные котлы
Водогрейный котел КВм-6.3 на ДВО используется для нагрева жидкости до 115 °С, применяемой в системах отопления и горячего водоснабжения. Отопительные приборы КВм-6.3 способны прогревать помещения площадью до 63000 м². Твердотопливный котел оснащается механической топкой на древесных отходах со шнековой подачей. Дополнительно к агрегату приобретаются сопутствующие товары: вентиляторы, дымососы, циклоны, дымовые трубы, бункер топки и другое котельное оборудование.
Вы смотрели эти товары
Отопительные котлы
Водогрейный котел КВр мощностью 1,3 МВт (1300 кВт) на угле с ручной топкой ОУР используется для получения горячей воды, температурой до 115 °С. Максимальная отапливаемая площадь помещений — 13000 м². В качестве топлива в отопительном котле КВр-1,3 используется каменный или бурый уголь. Получает большое применение в системах централизованного теплоснабжения и горячего водоснабжения. Устанавливается как самостоятельный водогрейный агрегат, или работает в системе из нескольких котлов в модульных или стационарных котельных.